Iveco Daily MBI 70-1/S
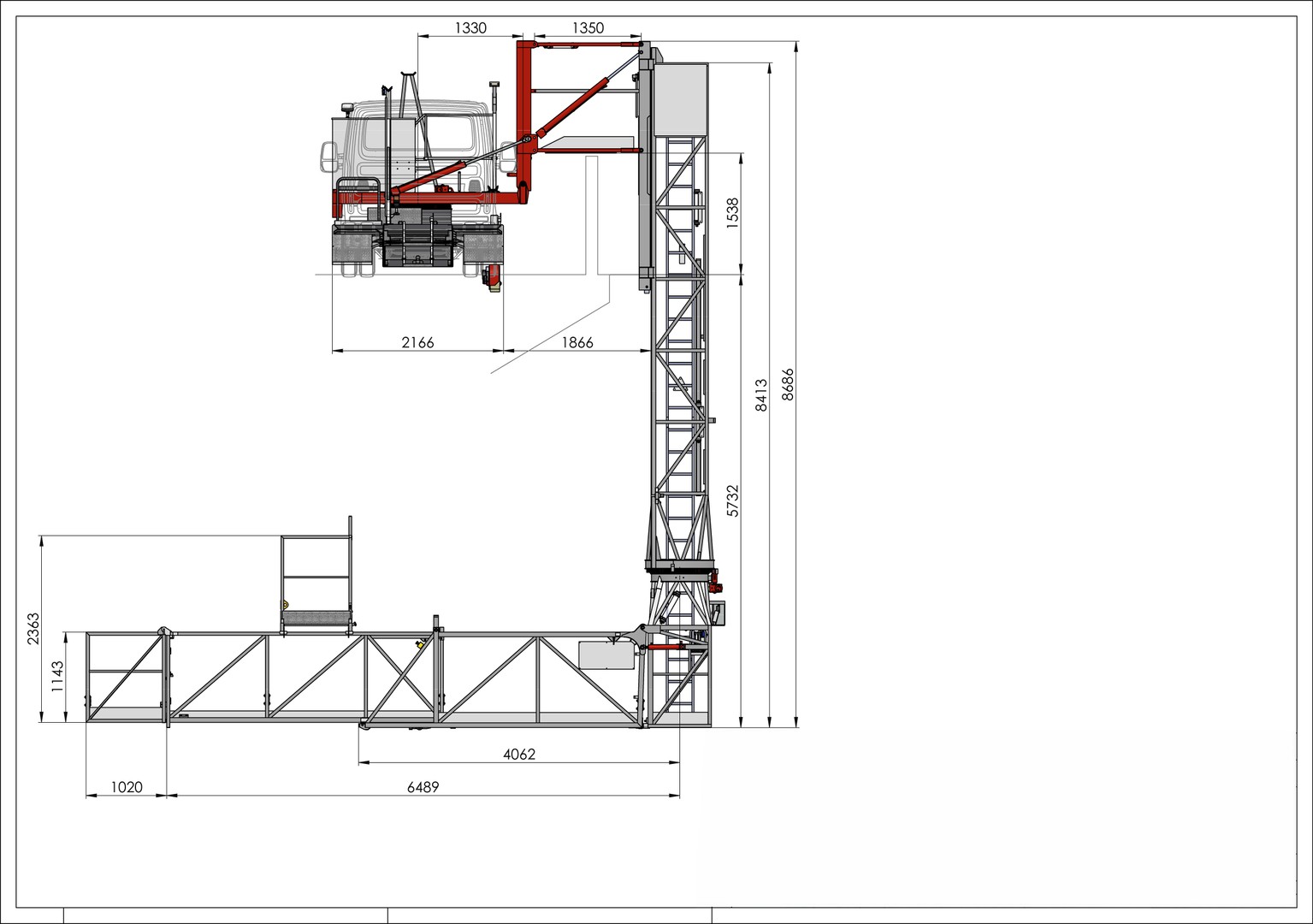
Kompaktní inspekční lávka MOOG MBI 70 pro diagnostické opravné práce. Délka lávky až 7,5 m, hloubka spuštění až 5,8 m.
Popis
Kompaktní inspekční lávka MOOG MBI 70 pro diagnostické opravné práce. Délka lávky až 7,5 m, hloubka spuštění až 5,8 m.
Mostní prohlížečka je umístěna na automobilovém podvozku IVECO DAILY. Inspekční lávka MOOG MBI 70-1/S umožňuje umístit hydropojezd na obě strany stroje, disponuje perfektními parametry nosnosti, dosahu lávky a hloubky spuštění. Kompaktní stroj oceníte na mostních konstrukcích, kde budete limitování rozměry a nosností. Stroj je vybaven generátorem elektrického proudu (napětí 230 V) pro připojení ručního nářadí. Technické řešení splňuje všechny bezpečnostní požadavky pro konstrukci a provoz vyhrazených zdvihacích zařízení.
Parametry
Ceník k pronájmu
Každý projekt je jedinečný, proto ceny za pronájem strojů stanovujeme individuálně s ohledem na vaše konkrétní přání, potřeby a požadavky. Tento přístup nám umožňuje zajistit, že výsledné řešení bude lépe odpovídat vašim očekáváním.
Neváhejte nás kontaktovat, abychom mohli společně probrat detaily a připravit cenovou kalkulaci přímo na míru vašemu projektu.





