MBI 140-1,4/S-1-620
Stranový dosah přes 14 metrů a maximální hloubka spuštění 9,5 metru zajistí, že se dostanete pod mostovku našich největších mostů po celé jejich šíři. Efektivita zaručena.
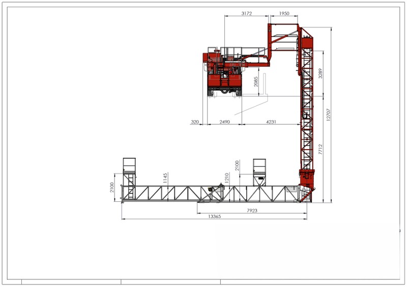
Popis
Stranový dosah přes 14 metrů a maximální hloubka spuštění 9,5 metru zajistí, že se dostanete pod mostovku našich největších mostů po celé jejich šíři. Efektivita zaručena.
Nástavba inspekční lávky výrobce MOOG je umístěna na podvozku SCANIA. Stroj je vybavený nadstandardním zdvihacím rámem pro překlenutí zvukových bariér do výšky až 3,9 metru a disponuje jeřábem integrovaným do nástavby, kterým je na lávku možné spouštět materiál o hmotnosti až 600 kg. Inspekční lávka je vybavena zdvihací věží, která pracovníka dostane výše do konstrukce mostu. Vestavěný hydropojezd umožní plynulý pohyb stroje s lávkou umístěnou v pracovní poloze. Nosnost lávky otočné o 180° je až 600 kg. Pro práci mimo zdroj elektrického proudu je prohlížečka vybavena 17,5 kVA generátorem s napětím 230V / 400V. Perfektní parametry stranového dosahu i maximální hloubky spuštění zajistí, že náš stroj vás dostane i pod ty největší mosty a to po celé jejich šíři. Technické řešení splňuje všechny bezpečnostní požadavky pro konstrukci a provoz vyhrazených zdvihacích zařízení.
Parametry
Ceník k pronájmu
Každý projekt je jedinečný, proto ceny za pronájem strojů stanovujeme individuálně s ohledem na vaše konkrétní přání, potřeby a požadavky. Tento přístup nám umožňuje zajistit, že výsledné řešení bude lépe odpovídat vašim očekáváním.
Neváhejte nás kontaktovat, abychom mohli společně probrat detaily a připravit cenovou kalkulaci přímo na míru vašemu projektu.






