Scania P 500 MBI 140-1,4/S-1-620
A lateral reach of 14 metres and a maximum launch depth of 9,5 metres ensures that you can get under the bridge deck of our largest bridges across their entire width. Efficiency guaranteed.
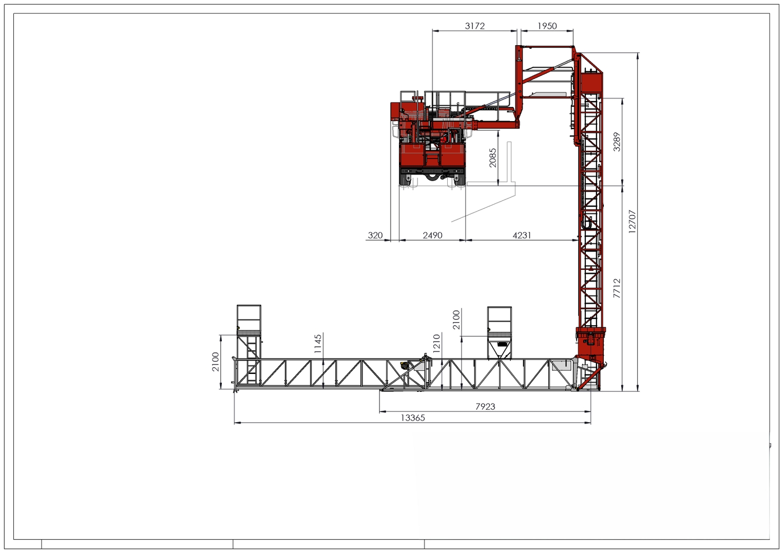
MOOG's inspection bridge superstructure is mounted on a SCANIA chassis. The machine is equipped with a superior lifting frame for bridging sound barriers up to 3,9 metres and has a crane integrated into the superstructure, which can lower material weighing up to 600 kg onto the gangway. The inspection gangway is equipped with a lifting tower that takes the worker higher into the bridge structure. A built-in hydraulic linkage allows smooth movement of the machine with the gangway positioned in the working position. The 180° swivel load capacity of the gangway is up to 600 kg. For working away from the power source, the viewer is equipped with a 17.5 kVA generator with 230V/400V voltage. The perfect parameters of lateral reach and maximum lowering depth ensure that our machine will get you under even the largest bridges and across their entire width. For the operation of the MOOG MBI 140-1,4/S inspection gangway we are trained directly at the MOOG GmbH. The technical solution meets all safety requirements for the construction and operation of dedicated lifting equipment.






